Byt 2E-2np

PODLAŽIE: 2.NP / POČET IZIEB: 3 / ROZLOHA: 79,48 m2

SPÄŤ NA VÝBER BYTOV

PREDANÝ Byty Trikota

Predaný

Číslo Miestnosť (m2)
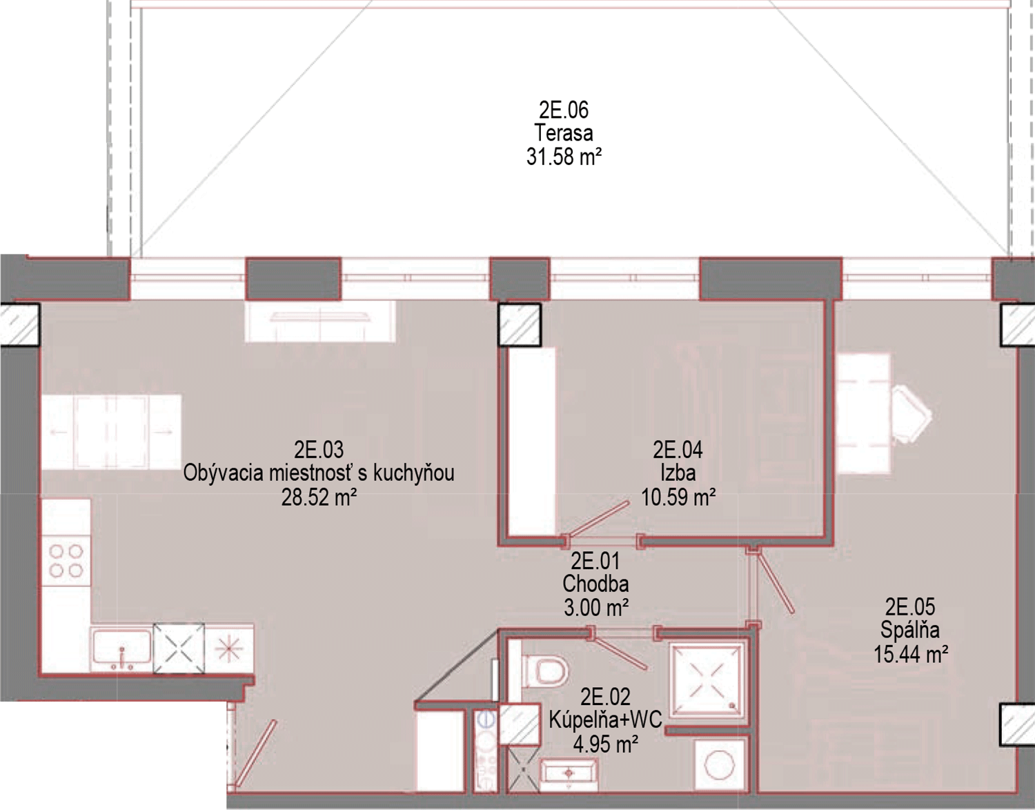
2E.01 Chodba 3.00
2E.02 Kúpelňa+WC 4.95
2E.03 Obývacia miestnosť s kuchyňou 28.52
2E.04 Izba 10.59
2E.05 Spálňa 15.44
Interiér celkom 62,5
2E.06 Balkón 15
2E.08 Kobka č. 1.51 1,98
Celková rozloha 79,48
CENA ZAHŔŇA:
Samostatná kobka 1
PARKOVACIE MIESTO:
Parkovacie miesto € 6.000 S DPH

zdielať:

  • 1. ŠTANDARD
    • VZOROVÝ BYT - kompletne zariadený na mieru

    • Cena parkovacieho miesta 6.000eur. Možnosť dokúpiť 2 parkovacie miesta (info v RK, limitovaný počet)

    • V cene bytu je zahrnutý "byt v štandardnom vyhotovení"  podľa vlastného výberu Klienta z katalógu

    • Pivničná kobka ku každému bytu zdarma
    • Vonkajšie hliníkové žalúzie na elektrické ovládanie v každom byte na každom okne
    • Predpríprava na klimatizáciu v každom byte 
    • Protipožiarne vstupné dvere do bytu s bezpečnostným kovaním a vložkou
    • Interiérové murované akustické priečky SILKA 300mm XELLA a v bytoch YTONG hrúbky 100 mm 
    • Sádrové omietky v celej budove a všetkých bytoch
    • Náter biela disperzná farba v dvoch vrstvách
    • Odhlučnené stropy - vo vrstvách stropov polystyrén, okolo stien použitý dilatačný pás styku podlaha/stena
    • Odhlučnené podlahy a steny
    • Samostatná plynová kotolňa, plne automatizovaná, s predprípravou na napojenie na tepelné čerpadlo
    • Teplovodné podlahové vykurovanie ovládané samostatne v každom byte
    • V kúpelniach elektrické podlahové vykurovanie plus teplovodný radiátor
    • Kompletná elektroinštalácia vrátane vypínačov a zásuviek /okrem svietidiel/
    • Optické káble pre pripojenie Internetu v každom byte
    • Príprava prípojných bodov pre kuchynskú linku
    • Vynikajúce tepelno - izolačné vlastnosti bytového domu (minerálnou vatou 200 mm )
    • Plastové okná 6-komorový ProfSystem s izolačným 3-sklom osádzané na pásky vrátane vonkajších  a vnútorných parapiet
    • Vonkajšie žalúzie na elektrické ovládanie v každom byte
    • Balkón v každom byte
    • Kúpeľne a toalety – dizajnové obklady a dlažby a kompletná sanitárna technika podľa vlastného výberu Klienta z ponúkaného štandardu
    • Podlahy: laminátové parkety podľa vlastného výberu Klienta vrátane obvodových krycích a prechodových líšt z ponúkaného štandardu
    • Interiérové dvere v obložkovej zárubni v dekóre podľa vlastného výberu Klienta z ponúkaného štandardu
    • Presná definícia a detailný rozpis štandardného vybavenia Bytu bude poskytnutá Klientovi na vyžiadanie
    • Všetky prvky štandardného vybavenia Bytov podliehajú ľubovoľnému výberu Klienta z ponúkaného štandardu a klientské zmeny/nadštandardné prvky požadované Klientom, podliehajú individuálnej cenotvorbe Zhotoviteľa
  • 2. NA MIERU
    • Komplexné riešenie zariadenia stavebnej časti a vyhotovenia interiéru Bytu  podľa vlastného výberu Klienta podlieha individuálnej komerčnej dohode Klienta s Developerom.

Mám záujem o viac informácií

Všetky polia označené hviezdičkou sú povinné a je potrebné ich vyplniť! *

Captcha
Prezrieť promo video

DEVELOPER